Code:
#4644
Price:
€120.000
Area:
60sq.m.
Floor:
N1
Elevator:
No
Bedrooms:
1
Bathrooms:
1
WC:
Heating type:
Autonomous
Heating medium:
Thermal accumulator
Year Built:
1971
Frames:
Wooden
Furnishings:
None
Energy class:
F
Πωλείται διαμέρισμα, 60τ.μ., πρόσοψης, στην περιοχή "Κέντρο Θεσσαλονίκης - Άγιος Δημήτριος". Πρόκειται για ένα φωτεινό ακίνητο. Βρίσκεται στον 1ο όροφο της οικοδομής. Αποτελεί μια αξιόλογη επιλογή για φοιτητές, οικογένειες και εργαζόμενους. Κατασκευάστηκε το 1971.
αρχες ανω πολης
2 λεπτά με τα ποδιά απο το τουρκικού προξενιό
διπλά σε σούπερ μαρκετ ,στάση λεωφορείου
στην ευρύτερη περιοχή κατοικούν φοιτητές και οικογένειες
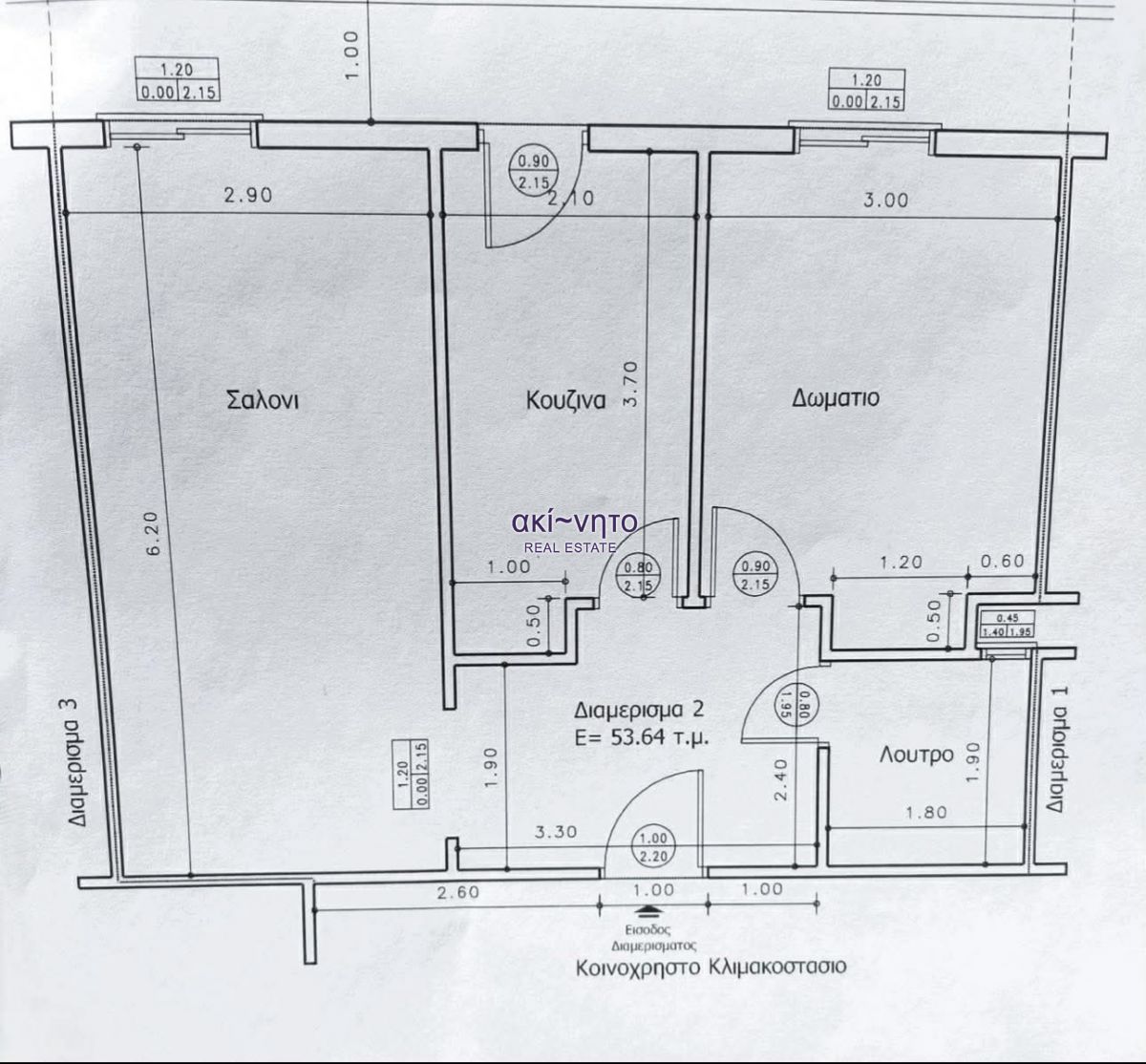
Αποτελείται από 1 υπνοδωμάτιο, σαλόνι, κουζίνα και 1 μπάνιο. Επιπλέον διαθέτει βεράντα.
Στα εσωτερικά του στοιχεία αξίζει να σημειωθούν η δομημένη καλωδίωση και το νυχτερινό ρεύμα.
Διαθέτει κουφώματα ξύλινα. Τα δάπεδα είναι από ξύλο, μωσαϊκό και πλακάκια.
Διαθέτει αυτόνομη θέρμανση με θερμοσυσσωρευτής (ατομική). Η ενεργειακή του κλάση είναι Ζ. Ο προσανατολισμός είναι ανατολικοδυτικός. Βρίσκεται σε απόσταση 1000μ. από τη θάλασσα.
Βρίσκεται κοντά σε λιμάνι, σχολείο, πανεπιστήμιο, πάρκο, δάσος, παραλία και εμπορικό κέντρο.
Με βάση τα χαρακτηριστικά του μπορεί να χαρακτηριστεί ως μια πολύ καλή επενδυτική επιλογή. Είναι επίσης κατάλληλο και για επαγγελματική χρήση. Ωστόσο να σημειωθεί πως χρήζει ανακαίνισης. Τα κατοικίδια είναι ευπρόσδεκτα.
Η επιφάνεια του οικοπέδου ανέρχεται στα 300τ.μ., ενώ των μπαλκονιών στα 14τ.μ.. Τέλος διαθέτει μονοφασικό ρεύμα.
Τιμή πώλησης: 120000€. Το ακίνητο είναι άμεσα διαθέσιμο.
Κωδικός ακινήτου: 4644
ακί~νητο Real Estate
Ολυμπιάδος 135, Θεσσαλονίκη, Ελλάδα
akistsirgiotis@yahoo.gr
Τηλέφωνο: 2313069059
ακί~νητο Real Estate
Ολυμπιάδος 135, Θεσσαλονίκη, Ελλάδα
akistsirgiotis@yahoo.gr
Τηλέφωνο: 2313069059
Location:
Kentro Thessalonikis - Agios Dimitrios
Address:
Αθηνάς 13, Θεσσαλονίκη 546 34, Ελλάδα
Copyright © 2026, built with by aBroker.