Buy
Office, 669sq.m.
Lachanokipoi
Featured New

€625.000

Details
  • Code:

    #4715

  • Price:

    €625.000

  • Area:

    669sq.m.

  • Floor:

    N5

  • Elevator:

    Yes

  • Rooms:

    4

  • Bathrooms:

    4

  • WC:

  • Heating type:

    Autonomous

  • Heating medium:

    Current

  • Year Built:

    1992

  • Frames:

    Aluminium

  • Furnishings:

  • Energy class:

    D

Description

Πωλείται νεόδμητο, γραφείο, πρόσοψης 669τ.μ., στην περιοχή "Βαρδάρης - Λαχανόκηποι - Λαχανόκηποι". Πρόκειται για ένα πολυτελές, διαμπερές και φωτεινό ακίνητο. Βρίσκεται στον 5ο και τελευταίο όροφο της οικοδομής θεά πιάτο θάλασσα και διαθέτει ασανσέρ. Κατασκευάστηκε το 1992.

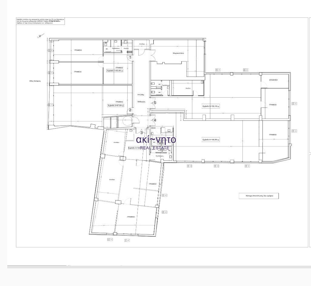
5ος οροφος
Αποτελείται από 4 γραφεία .
1) γραφείο 111τμ
2) οχι δεν πωλειται
3)γραφείο 203τμ
4) γραφείο 177 τμ
5)γραφείο 178τμ

υπαρχουν 4 καεκ
τέσσερίς παροχης ρευματος
τεσσερα υδρομετρα
διαμπερες
βλεπει θαλασσα

Αποτελείται από 4 χώρους και 4 μπάνια(. Επιπλέον διαθέτει 1 θέσης στάθμευσης.)

Στα εσωτερικά του στοιχεία αξίζει να σημειωθούν η δομημένη καλωδίωση.

Διαθέτει κουφώματα αλουμινίου με διπλά τζάμια. Τα δάπεδα είναι από πλακάκια.

Διαθέτει αυτόνομη θέρμανση με ηλεκτρισμός (ατομική). Η ενεργειακή του κλάση είναι Δ. Ο προσανατολισμός είναι ανατολικός. Έχει απεριόριστη θέα στη θάλασσα, στο βουνό και στο δάσος.

Βρίσκεται κοντά σε στάση λεωφορείου, στάση μετρό, σταθμό τρένου, λιμάνι, σχολείο, πάρκο και παραλία.

Με βάση τα χαρακτηριστικά του μπορεί να χαρακτηριστεί ως μια πολύ καλή επενδυτική επιλογή. Είναι επίσης κατάλληλο και για επαγγελματική χρήση. Τα κατοικίδια είναι ευπρόσδεκτα.

Η επιφάνεια του οικοπέδου ανέρχεται στα 1000τ.μ., ενώ των μπαλκονιών στα 12τ.μ.. Τέλος διαθέτει μονοφασικό ρεύμα.

Τιμή πώλησης: 625.000€. Το ακίνητο είναι άμεσα διαθέσιμο.

Κωδικός ακινήτου: 4715

ακί~νητο Real Estate
Ολυμπιάδος 135, Θεσσαλονίκη, Ελλάδα
akistsirgiotis@yahoo.gr
Τηλέφωνο: 2313069059

Location
  • Location:

    Lachanokipoi

  • Address:

    Αναγεννήσεως 11, Θεσσαλονίκη 546 27, Ελλάδα

The displayed position does not correspond to the actual address of the property. Contact us for more information.
#
Property code 4715

Contact agent

About us

Το μεσιτικό μας γραφείο βρίσκεται στην οδό Ολυμπιάδος 135 στο κέντρο της Θεσσαλονίκης και δραστηριοποιείται στο νομό Θεσσαλονίκης και στη Χαλκιδική. Το χαρτοφυλάκιό μας περιλαμβάνει ακίνητα κάθε τύπου. Θα βρείτε μοναδικές ευκαιρίες για αγοραπωλησία και μίσθωση διαμερισμάτων, φοιτητικών κατοικιών, εξοχικών, επαγγελματικής στέγης και οικοπέδων. Το μεσιτικο μας γραφειο μπορει να αναλαβει την ανακαινιση του ακινητου σας η του επαγγελματικου σας χωρου.. για περισσοτερες πληροφοριες μπορειτε να καλεσετε στο γραφειο μας .

Copyright © 2026, built with by aBroker.