Code:
#4631
Price:
€250.000
Area:
117sq.m.
Floor:
Ground floor
Elevator:
No
Bedrooms:
5
Bathrooms:
2
WC:
1
Heating type:
Autonomous
Heating medium:
Petrol
Year Built:
1996
Year Renovated:
2015
Frames:
Aluminium
Furnishings:
Energy class:
D
Πωλείται νεόδμητη, μεζονέτα, 117τ.μ., πρόσοψης, στην περιοχή "Μουδανιά - Διονυσίου". Πρόκειται για μία πολυτελές, διαμπερές και φωτεινό ακίνητο. Βρίσκεται στο ισόγειο της οικοδομής. Αποτελεί μια αξιόλογη επιλογή για οικογένειες και εργαζόμενους. Κατασκευάστηκε το 1996, ενώ ανακαινίστηκε το 2015.
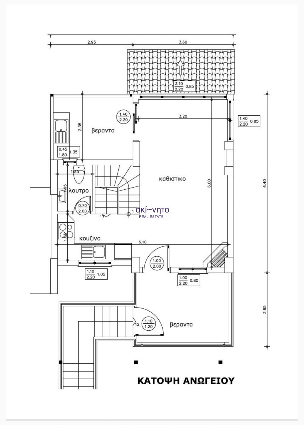
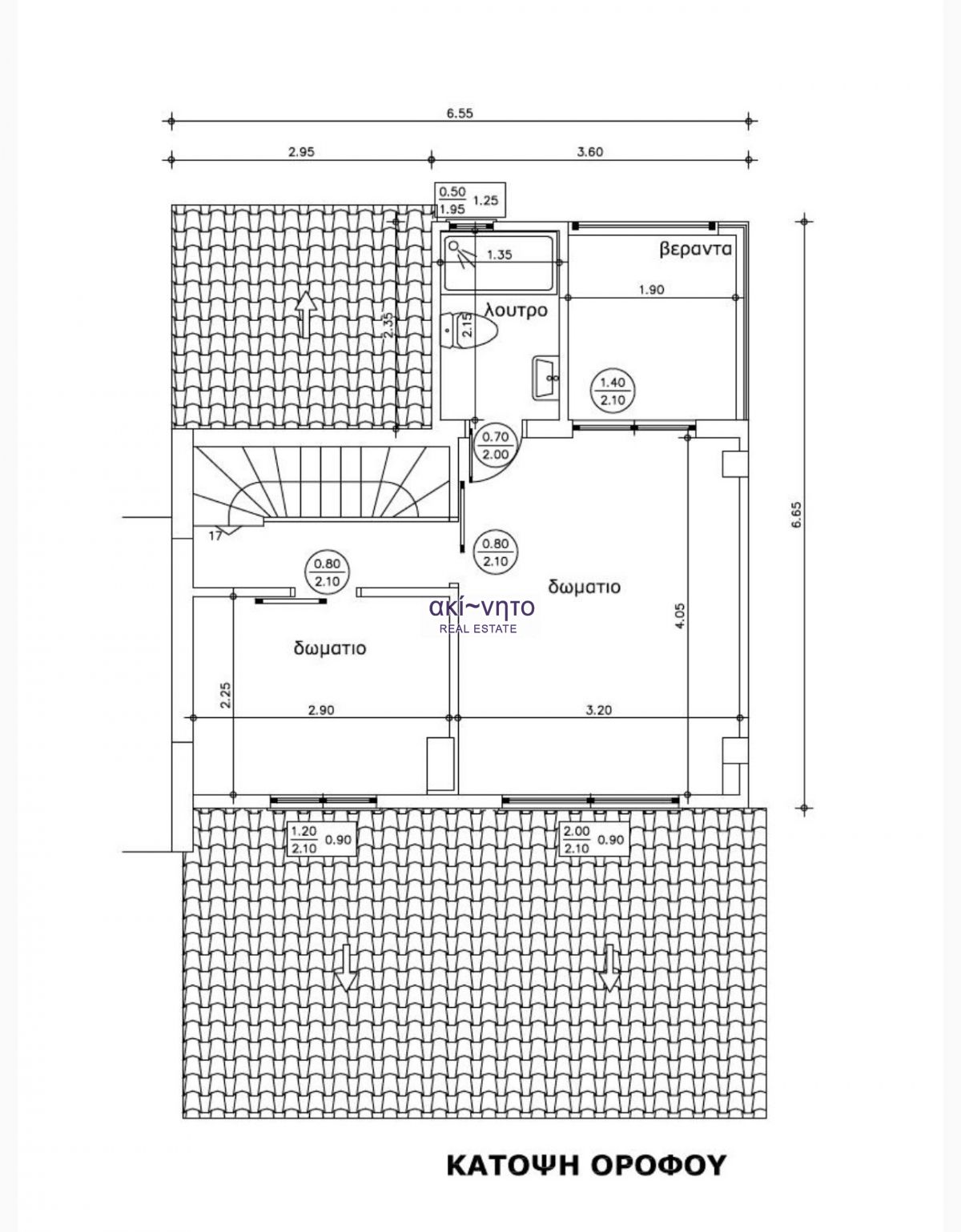
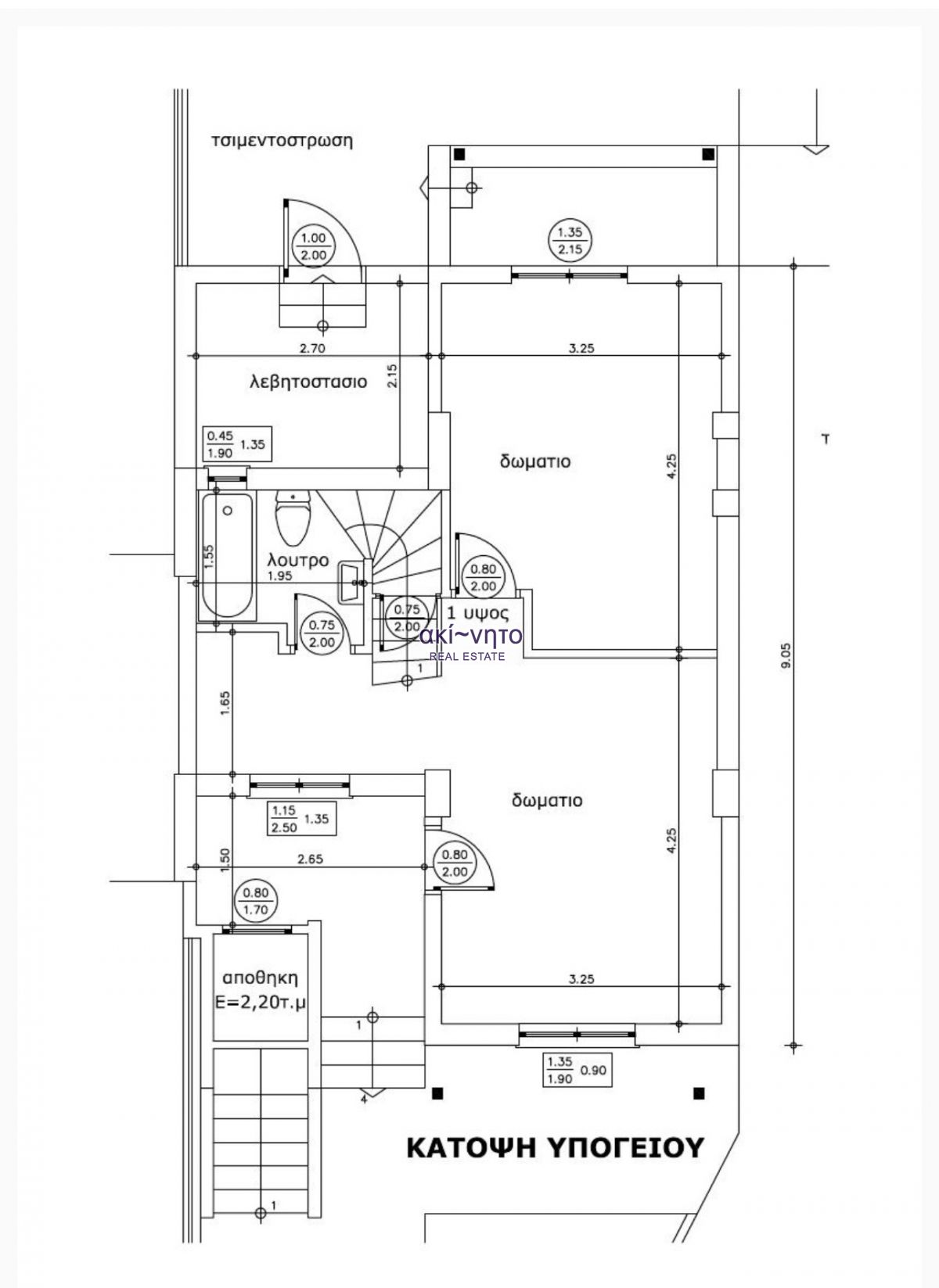
Είναι διαρρυθμισμένο σε 3 επίπεδα με εσωτερική σκάλα. Αποτελείται από 5 υπνοδωμάτια, σαλοκουζίνα, 2 μπάνια και 1 WC. Επιπλέον διαθέτει κήπο, βεράντα, αποθήκη, σοφίτα και θέση στάθμευσης.
στο ισόγειο εχει 3 δωματια και ενα να μπανιο
στον ημιώροφο εχει την σαλονοκουζινα και ενα wc και βεραντα
και στον πρωτο οροφο εχει 2 δωματια και μπανιο και βεραντα
το ακινήτο εχει αυλη
Στα εσωτερικά του στοιχεία αξίζει να σημειωθούν η πόρτα ασφαλείας, το τζάκι και η δομημένη καλωδίωση.
Διαθέτει κουφώματα αλουμινίου με διπλά τζάμια. Τα δάπεδα είναι από πλακάκια.
Διαθέτει αυτόνομη θέρμανση με πετρέλαιο (ατομική). Επιπρόσθετα υπάρχει κλιματισμός. Η ενεργειακή του κλάση είναι Δ. Ο προσανατολισμός είναι ανατολικοδυτικός. Έχει θέα στη θάλασσα, στο βουνό και στο δάσος. Βρίσκεται σε απόσταση 150μ. από τη θάλασσα.
Βρίσκεται κοντά σε στάση λεωφορείου, λιμάνι, δάσος, παραλία και εμπορικό κέντρο.
Με βάση τα χαρακτηριστικά του μπορεί να χαρακτηριστεί ως μια πολύ καλή επενδυτική επιλογή. Είναι επίσης κατάλληλο και για επαγγελματική χρήση. Τα κατοικίδια είναι ευπρόσδεκτα.
Η επιφάνεια του οικοπέδου ανέρχεται στα 400τ.μ., ενώ των μπαλκονιών στα 18τ.μ.. Τέλος διαθέτει μονοφασικό ρεύμα.
Τιμή πώλησης: 250.000€. Το ακίνητο είναι άμεσα διαθέσιμο.
Κωδικός ακινήτου: 4631
ακί~νητο Real Estate
Ολυμπιάδος 135, Θεσσαλονίκη, Ελλάδα
akistsirgiotis@yahoo.gr
Τηλέφωνο: 2313069059
Location:
Moudania - Dionusiou
Address:
5η Λεωφόρος 24, Παραλία Διονυσίου 632 00, Ελλάδα
Copyright © 2026, built with by aBroker.